博鱼网上十大网站
福州城投
网站博鱼网上十大网站
集团概况
博鱼网上十大网站
博鱼网上十大网站
集团产业
业绩展示
人力资源
服务与交流
在建项目
当前位置:
网站博鱼网上十大网站
>
业绩发展
>
在建项目
安置房项目
已建成项目
在建项目
计划中项目
商品房项目
已建成项目
在建项目
拟建项目
市政建设项目
已建成项目
在建项目
计划中项目
校安项目
已建成项目
在建项目
计划中项目
公建建设项目
已建成项目
在建项目
计划中项目
酒店文化产业项目
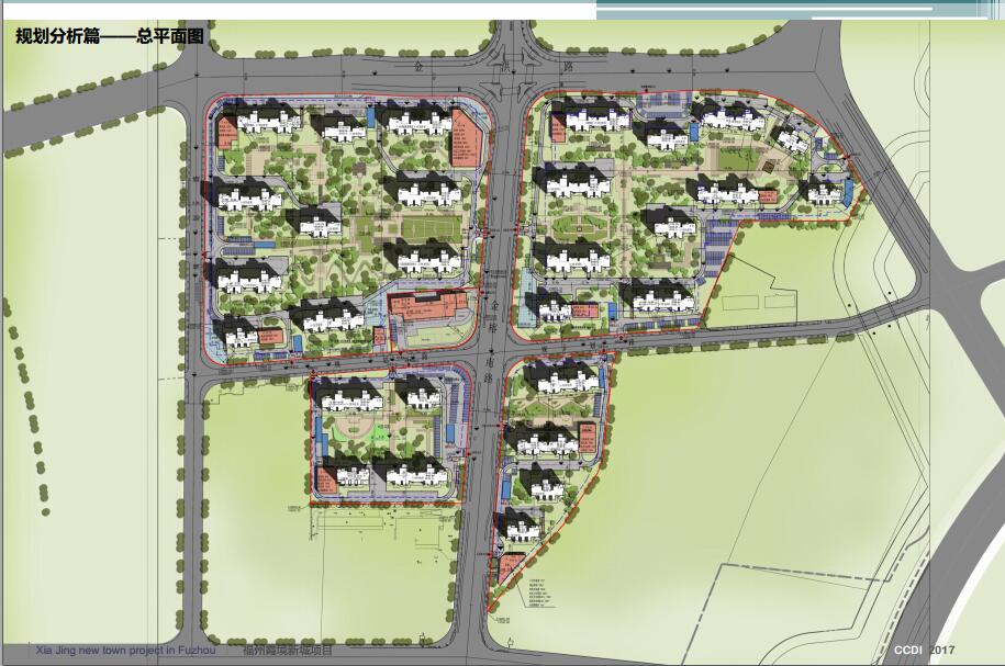
霞境新城
项目名称:霞境新城社会保障房项目
地理位置:福州市仓山区建新镇霞镜村、建平村
总用地面积:总用地
244
亩
实用地面积:242亩
容积率:2.22
总建筑面积:
52.8万平方米
网站地图
|
免责声明
|
权属企业
|
友情链接
|
人才招聘
|
联系我们
版权所有
©2025
福州市建设发展集团有限公司 技术支持:
(建议使用1024×768以上分辨率IE8.0以上版本或者谷歌浏览器)